
Современный эко-минимализм: дизайн-проект евродвушки 57 м² в ЖК «Талисман»
О проекте
Введение: Когда каждый метр имеет значение
Принято считать, что для комфортной жизни семьи из четырех человек требуется как минимум «трешка» площадью от 80 квадратов. Однако реалии рынка недвижимости Москвы диктуют свои условия. В нашу студию обратилась заказчица Ирина с квартирой в современном жилом комплексе «Талисман» на Дмитровском шоссе.
Исходные данные были непростыми: общая площадь 56,9 м² и задача разместить семью из четырех человек. Нам предстояло не просто «расставить мебель», а создать полноценное, функциональное пространство, где у родителей будет своя спальня, у детей — свое пространство для игр и учебы, а у всей семьи — общая зона для встреч. И все это — в рамках бюджета 2 млн рублей и в стилистике спокойного эко-минимализма.
Планировочная стратегия: Борьба за функционал
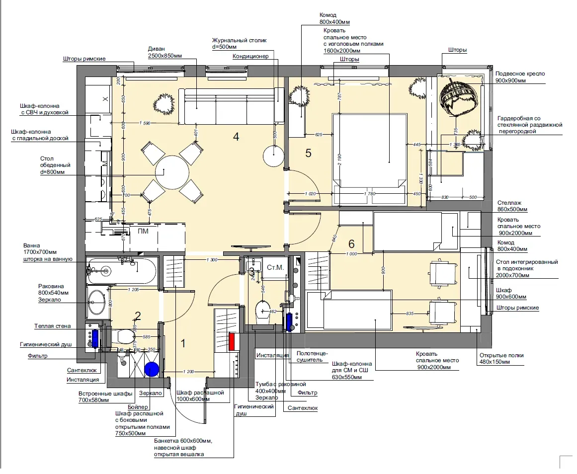
Главным вызовом проекта стало зонирование. В квартире площадью менее 60 квадратов мы смогли организовать структуру полноценной трехкомнатной квартиры (формат «евро-трешка»).
Кухня-гостиная (19,4 м²): Центр притяжения Это сердце дома. Мы отказались от громоздких решений в пользу легкости. Кухонный гарнитур спроектирован линейно или Г-образно (в зависимости от финальной утвержденной схемы), чтобы оставить максимум места для обеденной зоны и дивана. Здесь семья собирается вместе, поэтому важно было не перегрузить пространство шкафами, сохранив «воздух».

Спальня (14,0 м²): Для родителей мы выделили самую просторную из жилых комнат. 14 метров — это достаточная площадь для размещения полноценной двуспальной кровати с ортопедическим матрасом, прикроватных тумб и вместительной системы хранения. Мы понимали, что для родителей спальня — это единственное место уединения, поэтому сделали ставку на звукоизоляцию и спокойную колористику.

Детская комната (12,3 м²): Самая сложная логистическая задача — разместить двоих детей на 12 квадратах. Здесь каждый сантиметр работает на функционал. Мы использовали вертикальное зонирование (или двухъярусные решения/разнесенные кровати), чтобы освободить место для игр на полу. Рабочие места организованы у окна для доступа к естественному свету.

Санузлы: Роскошь двух мокрых зон Огромным преимуществом этой планировки стало наличие двух санузлов: основного (4,1 м²) и гостевого (1,9 м²). Для семьи из четырех человек это критически важно — это позволяет избежать утренних очередей и делает сборы в школу и на работу спокойными. В основном санузле мы разместили полноценную ванну, а гостевой выполняет функцию постирочной и дополнительного туалета.


Дизайн-код: Эко-минимализм и визуальные приемы
Заказчица озвучила пожелание: «Элегантный, спокойный минимализм, эко-стиль». Чтобы визуально расширить небольшое пространство, мы использовали следующие приемы:
Цветовая палитра: Основа интерьера — сложные оттенки белого, светло-серого и натурального дерева. Светлые стены работают как отражатель, наполняя комнаты естественным светом.
Теневые профили: В проекте использованы потолки с теневым профилем. Отказ от классических потолочных плинтусов создает эффект «парящего» потолка и визуально приподнимает его, делая геометрию комнат чище и современнее.
Скрытые двери и плинтуса: Мы старались минимизировать визуальный шум. Двери скрытого монтажа (под покраску) или лаконичные модели в цвет стен не дробят пространство.
Работа с текстурами: Чтобы светлый интерьер не казался «больничным», мы добавили тактильные материалы: дерево на полу, текстиль с выраженной фактурой, мягкие изголовья кроватей.

Инженерные решения и Бюджет
Красивая картинка ничего не стоит без грамотной технической базы. В проекте детально проработаны:
Сценарии освещения: Помимо основного света, предусмотрена локальная подсветка (бра, торшеры, LED-ленты в нишах). Это позволяет менять атмосферу в квартире вечером, делая её камерной и уютной.
Электрика: Планы розеток составлены с учетом всех гаджетов современной семьи — от зарядки робота-пылесоса до рабочих мест школьников.
Что касается бюджета, мы ориентировались на сумму около 2 млн рублей. Для реализации такой задачи мы подбирали материалы по принципу «best value for money»: качественная база (сантехника, полы) и разумная экономия на декоре, который можно со временем заменить. Стены подготовлены под обои или покраску, что является практичным решением для семьи с детьми.
Итог
Проект в ЖК «Талисман» доказывает: комфортная жизнь возможна и на 57 квадратных метрах, даже если вас четверо. Главное — грамотное планировочное решение, отказ от лишнего в пользу необходимого и светлая цветовая гамма, стирающая границы. Мы создали интерьер, который станет для семьи Ирины настоящей крепостью и местом силы.
Детали проекта
Площадь
57 м²
Срок
2 месяца
Локация
г. Москва ЖК Талисман
Год
2025
Стиль
Современный / Эко-МинимализмГалерея
Проект был выполнен для компании REBL