
Современная стоматология на Болотниковской: проект клиники 79 м²
О проекте
Медицинский рационализм: Обзор дизайн-проекта стоматологии на Болотниковской
Введение: Квест на 78 квадратных метрах
Открытие стоматологической клиники — это всегда борьба компромиссов. Инвестору нужно максимизировать прибыль (больше кабинетов), врачам — получить просторные рабочие места, а проверяющим органам (Роспотребнадзор) — увидеть строгое соблюдение санитарных норм. Когда в распоряжении всего 78,7 м², задача становится похожей на сборку сложнейшего пазла.
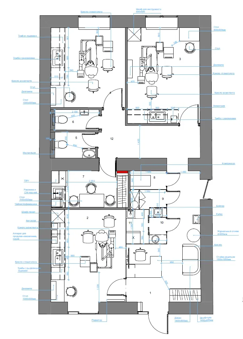
Проект клиники на улице Болотниковская — отличный пример того, как профессиональное зонирование превращает пустое бетонное пространство в высокотехнологичное медицинское учреждение. Исходные данные (лист 2) представляли собой три пустых помещения свободной планировки. Нам предстояло создать клинику полного цикла с тремя лечебными кабинетами, зоной диагностики и комфортной зоной ожидания.
В этом кейсе мы разберем не цвет стен, а логику медицинского планирования: как развести потоки пациентов и персонала, где спрятать шумный компрессор и как спроектировать рентген-кабинет в жилом доме.
Планировочное решение: Борьба за каждый сантиметр
Согласно медицинским нормативам (СанПиН), площадь стоматологического кабинета на одно кресло должна быть не менее 14 м² (допускаются небольшие отклонения при определенных условиях). Посмотрим на экспликацию помещений (Лист 3):
Кабинет №1 и №2 (по 14,0 м²): Это «золотой стандарт». Здесь комфортно размещается стоматологическая установка, мебель врача и ассистента. Соблюдены требования по инсоляции (естественному освещению) и метражу.
Кабинет №3 (12,0 м²): Чуть более компактный кабинет, идеально подходящий для гигиениста или первичного осмотра.
Логистическое ядро: Все кабинеты объединены общим коридором, который ведет от зоны рецепции (13,7 м²).
Зона ожидания (Рецепция) 13,7 м² — это оптимальная площадь для входной группы небольшой клиники. Здесь удалось разместить стойку администратора, гардероб для верхней одежды пациентов и зону ожидания с мягкой мебелью. Важно, что входная зона визуально изолирована от лечебной части, что снижает уровень стресса у ожидающих пациентов (они не слышат звуков бормашины).
Технические зоны: Сердце клиники
Пациент видит только кресло и врача, но работа клиники зависит от вспомогательных помещений. В этом проекте они скомпонованы максимально эффективно.
Стерилизационная (6,0 м²)
Это «чистая зона», где происходит обработка инструментов. Согласно проекту, она вынесена в отдельное помещение. Это критически важно для соблюдения стерильности. Логистика выстроена так, чтобы грязный инструмент попадал сюда кратчайшим путем, проходил цикл автоклавирования и возвращался в кабинеты уже стерильным.
Рентген-кабинет (3,0 м²)
Проектирование рентген-кабинета — самая сложная часть.
Защита: Стены и двери этого помещения должны быть экранированы (обычно используется баритовая штукатурка или листовой свинец), чтобы излучение не выходило за пределы комнаты.
Пультовая: Управление снимком выведено наружу (или за защитную ширму), обеспечивая безопасность персонала.
Площадь: 3 квадратных метра достаточно для размещения визиографа или ортопантомографа при соблюдении спец. техусловий.
Компрессорная и Серверная (2,2 м²)
Стоматологическое оборудование требует сжатого воздуха и вакуума. Компрессоры и помпы — это шумные агрегаты. В проекте мы выделили для них крошечное, но изолированное техническое помещение (№9). Это решает главную проблему маленьких клиник — шум и вибрацию, которые мешают работе врачей и пугают пациентов.
Разделение потоков и Санузлы
СанПиН требует разделения санузлов для персонала и пациентов. В проекте на 78 м² найти место для двух туалетов сложно, но необходимо.
Гостевой санузел (3,0 м²): Расположен ближе к входу, доступен для пациентов, в том числе маломобильных групп.
Служебный санузел (2,5 м²): Находится в глубине служебной зоны, рядом с ординаторской (комнатой персонала, 6,0 м²).
Такое зонирование (Лист 3) четко делит клинику на «публичную» и «служебную» части, что удобно и правильно с точки зрения гигиены.
Инженерные сети: Специфика стоматологии
На листах с планами электрики и розеток видны специфические требования к инженерии.
Электрика и Высоты
В стоматологии стандартные высоты розеток (30 см от пола) не работают. Врачу нужно подключать оборудование на уровне столешницы или выше.
Высота 1050 мм: Это стандарт размещения розеток над рабочими поверхностями в кабинетах (для подключения полимеризационных ламп, эндомоторов, скалеров).
Высота 2600 мм: Предусмотрены выводы под потолком. Это питание для телевизоров или мониторов, которые вешаются над стоматологическим креслом (чтобы пациент мог смотреть фильм во время длительного лечения) или для подключения медицинских светильников.
IP44: В примечаниях (п. 6 на Листе 3) строго указано: "Устройство розеток и приборов освещения в 'мокрых зонах' предусмотреть в исполнении не ниже IP 44". Это требование влагозащиты, обязательное для медицинских помещений, где проводится регулярная влажная уборка с дезинфектантами.
Водоснабжение и Канализация
К каждому стоматологическому креслу (в центр кабинета) подведены коммуникации в стяжке пола:
Подача воды и воздуха.
Канализация (слив).
Вакуумная магистраль (отсос). Ошибка в точке вывода коммуникаций всего на 10 см может сделать установку кресла невозможной, поэтому проект требует ювелирной точности при монтаже (см. примечание о согласовании размеров после штукатурки).
Отделочные материалы: Чистота и Износостойкость
Хотя ведомость отделки представлена не полностью, исходя из назначения помещений, проект предполагает использование специализированных материалов.
Стены: Медицинская краска, устойчивая к химическим дезинфектантам, или плитка/керамогранит на всю высоту стен в хирургических зонах. Никаких бумажных обоев или рельефной штукатурки, в порах которой могут скапливаться бактерии.
Пол: Гомогенный коммерческий линолеум с заводом на стену (коннелюрный плинтус) или керамогранит с эпоксидной затиркой. Главное требование — отсутствие швов и углов, где может скапливаться грязь.
Потолок: Часто используется система "Армстронг" с медицинскими (моющимися) плитами или металлические кассетные потолки, обеспечивающие доступ к запотолочному пространству для обслуживания вентиляции.

Освещение: Свет как инструмент
В кабинетах №1, №2 и №3 свет — это рабочий инструмент врача. Проектом предусмотрено два контура освещения:
Общий заливающий свет: Равномерное освещение всего кабинета (обычно 500 Люкс), с высокой цветопередачей (CRI > 90), чтобы врач мог точно подбирать цвет пломб и коронок.
Локальный свет: Светильники непосредственно над рабочей зоной.
В зоне рецепции свет более мягкий, теплый, создающий расслабляющую атмосферу, чтобы снизить тревожность посетителей перед приемом.
Заключение
Дизайн-проект стоматологии на улице Болотниковская от UNIQUE HOME — это пример блестящей работы с функцией. Дизайнеру удалось разместить на 78 квадратных метрах полноценную клинику на 3 кресла, не нарушив жестких норм СанПиН.
Заказчик получил не просто красивый интерьер, а готовый бизнес-инструмент. Продуманная эргономика экономит время врача (всё под рукой), разделение потоков обеспечивает комфорт пациентов, а грамотная инженерия гарантирует бесперебойную работу дорогостоящего оборудования. Этот проект доказывает, что даже в небольшом помещении можно создать медицину высокого уровня.
Детали проекта
Площадь
78,7 м²
Срок
1,5 месяца
Локация
г. Москва, ул. Болотниковская
Год
2024
Стиль
Медицинский минимализмГалерея
Проект был выполнен для компании AAintdesign