
Дизайн-проект двухкомнатной квартиры в ЖК «Равновесие»: Неоклассика в Одинцово
О проекте
Гармония за городом: Полный обзор дизайн-проекта двухкомнатной квартиры в ЖК «Равновесие»
Введение: Урбанистический комфорт в формате загородной жизни
Переезд за город — это всегда поиск баланса. Баланса между тишиной природы и привычным городским комфортом. Жилой комплекс «Равновесие» в Одинцовском районе (с. Перхушково) своим названием уже задает тон будущему интерьеру. Это квартал малоэтажной застройки с увеличенными окнами и просторными планировками, который требует особого дизайнерского подхода.
Владельцы этой двухкомнатной квартиры обратились к нам с понятной задачей: создать уютное семейное гнездо, которое не будет перегружено деталями, но при этом сохранит элегантность и статус. Мы должны были уйти от ощущения «временного жилья» или «дачи», создав полноценный, технологичный и стильный интерьер для постоянного проживания.
В этой статье я подробно разберу, как мы работали с пространством, почему выбрали неоклассику и как с помощью цвета и молдингов превратили типовую бетонную коробку в квартиру мечты.
Часть 1. Планировка и Инженерия: Скрытый фундамент комфорта
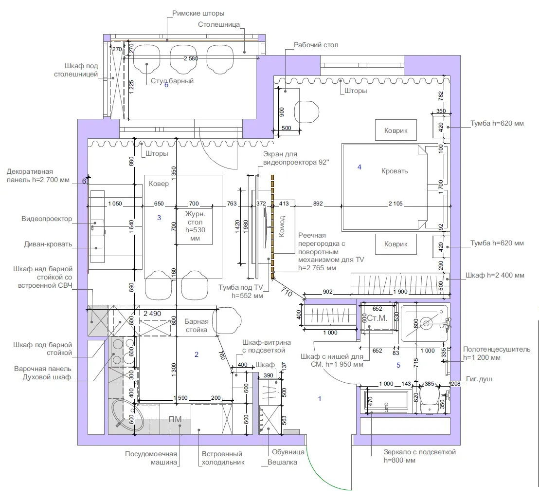
Любой красивый интерьер начинается с черной работы, которой не видно на фото в Instagram, но которая ощущается каждый день. Проект объемом 47 листов — это не просто картинки, это детальная инструкция для строителей.
1. Работа с пространством Квартира имеет классическую для этого ЖК конфигурацию. Мы сохранили логичное деление на общественную и приватную зоны.
Прихожая и коридоры: Здесь мы боролись за каждый сантиметр хранения. Важно было избежать визуального шума, поэтому шкафы спроектированы встроенными, сливающимися со стенами.
Кухня: Это не просто место готовки, а социальный хаб квартиры. Мы предусмотрели достаточное количество розеток для бытовой техники на рабочей поверхности (план розеток — лист 25), чтобы хозяйке не приходилось использовать удлинители.
Санузел: Мы объединили ванную и туалет (лист 28), чтобы выиграть место для полноценной стиральной зоны и просторной ванны.

2. Инженерные системы Жизнь за городом диктует свои правила климат-контроля.
Теплый пол (Лист 19): Мы спроектировали зоны теплого пола в прихожей, на кухне и в санузле. Это критически важно для первого этажа или просто для комфорта в межсезонье, когда центральное отопление еще не включено.
Кондиционирование (Лист 20): Заранее проложенные трассы под сплит-системы позволят избежать штробления стен по чистовой отделке. Блоки размещены так, чтобы поток холодного воздуха не дул прямо на диван или кровать.

Часть 2. Стилистическое решение: Почему современная классика?
Выбор стиля был продиктован архитектурой ЖК и пожеланиями заказчиков. Чистый минимализм мог показаться здесь слишком холодным и офисным, а пышная классика — неуместной в квартире средней площади. Мы нашли золотую середину — Soft Neoclassic.
Магия Молдингов (Лист 30) Один из главных приемов этого проекта — использование настенных молдингов. Посмотрите на развертки стен: строгие прямоугольные рамы из полиуретана задают помещению ритм и вертикаль, визуально приподнимая потолки.
Совет дизайнера: Молдинги — это самый бюджетный способ сделать интерьер визуально дороже. Окрашенные в цвет стены, они создают игру света и тени, избавляя от ощущения «пустых стен», но не перегружая их декором, как картины или полки.
Цветовая палитра База интерьера — спокойные, природные оттенки: сливочный, песочный, светло-серый. Это фон, на котором «играют» акценты. Однако мы не побоялись цвета. В проекте использован очень красивый оттенок — Tiffany Blue (бирюзово-мятный). Он появляется дозированно, освежая пространство и добавляя ему воздуха.
Часть 3. Детальный разбор помещений
Давайте пройдемся по ключевым зонам, опираясь на ведомость материалов.
Ванная комната: SPA-курорт на 4 метрах Санузел в этом проекте — моя отдельная гордость. Мы использовали сочетание фактур, чтобы уйти от ощущения стерильной операционной.
Плитка: Главный акцент — плитка Alborz Ceramic Tiffany. Её глубокий бирюзовый цвет и глянцевая фактура создают эффект водной глади. Она использована зонально, в сочетании с более спокойным керамогранитом.
Сантехника: Мы выбрали надежные решения. Унитаз WesnaArt RAY — безободковый, что упрощает уборку. Смесители Haiba в классическом хроме — это проверенная временем «рабочая лошадка», которая выглядит стильно и служит годами.
Душевой трап: Использование трапа AM.PM PrimeFlow позволяет сделать душевую зону в строительном исполнении (если позволяет конструктив пола), что всегда выглядит более премиально, чем пластиковый поддон.

Кухня: Функциональная эстетика На кухне мы сделали ставку на практичность. Плитка на фартуке (развертка лист 29) перекликается с общей стилистикой. Мы использовали керамогранит с текстурой камня или бетона, который легко мыть. Сценарии освещения (Лист 23) здесь продуманы особенно тщательно:
Общий заливающий свет (потолочные светильники).
Направленная подсветка рабочей зоны (лента под шкафами).
Уютный свет над обеденным столом.

Жилые комнаты В спальне и гостиной (судя по плану пола, лист 18) уложена инженерная доска или качественный ламинат теплых древесных оттенков. Это добавляет уюта. Стены с молдингами создают идеальный фон для мягкой мебели простых геометрических форм.
Часть 4. Бюджет и Комплектация: Разумная экономия
Одна из задач дизайнера — вписаться в бюджет, не потеряв в качестве. В ведомости (Листы 31-47) вы не увидите неоправданно дорогих брендов, за которые нужно переплачивать только из-за имени.
Мы использовали российские и китайские бренды сантехники (Haiba, WesnaArt), которые сейчас предлагают отличное качество литья и покрытия.
Плитка Alborz Ceramic — это отличная альтернатива дорогим испанским коллекциям. Она выглядит так же эффектно, но стоит в разы дешевле.
Основная часть бюджета была перераспределена на черновые материалы и инженерию — то, что делается один раз и надолго.

Заключение
Дизайн-проект в ЖК «Равновесие» — это доказательство того, что стильный интерьер не обязательно должен быть вычурным или безумно дорогим. Секрет успеха здесь кроется в грамотной базе:
Продуманная эргономика и планы электрики.
Классические приемы декорирования (молдинги).
Природная цветовая гамма с одним свежим акцентом.
Владельцы этой квартиры получили не просто набор чертежей, а подробное руководство к действию. Результатом станет пространство, в котором глаза отдыхают, а быт налажен до автоматизма. Это и есть настоящее «Равновесие» — гармония формы и функции.
Детали проекта
Площадь
46,3 м2
Срок
2 месяца
Локация
Одинцовский р-н, ЖК Равновесие
Год
2024
Стиль
Неоклассика / СовременныйГалерея
Проект был выполнен для компании REROOMS