
Дизайн квартиры 32 кв.м под сдачу в ЖК «Первый Дубровский»
О проекте
Евро-формат на 32 метрах: Обзор дизайн-проекта в ЖК «Первый Дубровский»
Введение: Ликвидность в деталях
Инвестиционная недвижимость — это всегда баланс между вложениями и потенциальной прибылью. В ЖК комфорт-класса «Первый Дубровский» (Москва, ул. Новоостаповская) перед нами стояла задача создать интерьер для квартиры площадью 32,1 м². Цель заказчицы Елены — долгосрочная аренда.
Главная ошибка многих владельцев небольших квартир — попытка оставить пространство «открытым», превращая жилье в студию. Мы пошли другим путем. Анализ рынка показывает: арендаторы готовы платить больше за изолированную спальню. Приватность ценится выше, чем визуальный простор. Поэтому мы работали с этим объектом как с полноценной квартирой формата «евро-двушка», где есть четкое разделение на общественную и приватную зоны.
Планировочное решение: Борьба за функционал
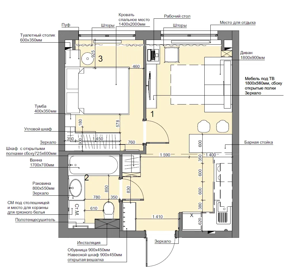
На площади 32 квадратных метра нам удалось разместить функционал квартиры площадью 45+ метров. Мы отказались от бесполезных коридоров в пользу жилой площади. Экспликация помещений выглядит так:
Кухня-гостиная (19,3 м²): Самое большое помещение, выполняющее сразу четыре функции (готовка, столовая, гостиная, кабинет).
Изолированная спальня (9,2 м²): Приватная комната с окном.
Совмещенный санузел (3,6 м²): Укомплектован полноразмерной ванной.

Такая планировка делает квартиру идеальной для проживания одного человека или молодой пары, работающей удаленно.
Кухня-гостиная: Центр притяжения
Помещение площадью 19,3 м² зонировано таким образом, чтобы «мокрые» процессы кухни не мешали отдыху.
Кухонная зона: Мы спроектировали лаконичный гарнитур. Учитывая, что квартира под сдачу, мы оптимизировали технику: варочная панель на 2 конфорки (этого достаточно для 1-2 человек) и встроенная СВЧ-печь в верхнем ярусе шкафов. Это освободило рабочую поверхность.
Обеденная группа: Круглый стол — идеальное решение для проходных зон, так как отсутствие углов улучшает эргономику.
Рабочее место: В ТЗ было обязательное требование организовать рабочую зону. Мы разместили полноценный стол у окна, обеспечив естественное освещение. Это огромное конкурентное преимущество для арендаторов-фрилансеров.
Зона отдыха: Угловой диван и ТВ-зона расположены так, что они визуально отделены от кухни.

Спальня: 9 метров комфорта
Спальня площадью 9,2 м² — это вызов для эргономики. Здесь важно было не превратить комнату в «вагон-купе».
Кровать: Мы разместили полноценную двуспальную кровать (спальное место 1400х2000 мм). Это разумный компромисс для такой площади, позволяющий сохранить проходы.
Хранение: Чтобы не загромождать пространство прямыми шкафами, мы использовали угловой шкаф с открытым торцевым стеллажом (725х600 мм). Он вместителен, но визуально занимает меньше места в углу комнаты.
Beauty-зона: Нашлось место даже для компактного туалетного столика (600х350 мм) с пуфом и зеркалом. Для девушки-арендатора это будет весомым плюсом при просмотре квартиры.

Санузел: Ванна против Душа
В маленьких квартирах часто отказываются от ванной в пользу душевой кабины, чтобы поставить стиральную машину. Мы же сохранили ванну длиной 1700 мм. Это повышает статус квартиры, так как многие арендаторы принципиально ищут варианты с ванной. Стиральная машина размещена под единой столешницей с накладной раковиной. Это классическое, проверенное временем решение для экономии места. Над инсталляцией предусмотрен шкаф для бытовой химии, закрывающий коммуникации.
Дизайн и Материалы: Инвестиционный подход
Стилистика проекта — современный минимализм с элементами экостиля. Мы понимали, что интерьер должен быть «фотогеничным» для объявлений и при этом износостойким.
Цветовая гамма: Основной цвет стен — сложный оттенок Mocha Mousse (кофейный мусс). Он теплее и уютнее чистого белого, и на нем меньше видны загрязнения. В качестве свежего акцента использован цвет Greenery (зелень) в текстиле и декоре.
Детали: Фурнитура и смесители в цветах «матовое золото» и «бронза» добавляют интерьеру лоска, уводя его от ощущения «эконом-ремонта».
Освещение: Продумано несколько сценариев. Яркий технический свет (споты) и уютный вечерний (бра у кровати, торшер у дивана, подсветка рабочей зоны).

Итог
Проект в ЖК «Первый Дубровский» доказывает: даже на 32 метрах можно создать полноценное жилье, а не просто «спальное место». Грамотное разделение на кухню-гостиную и спальню, наличие ванны и рабочего места делают этот объект высоколиквидным активом, который будет выгодно отличаться от конкурентов-студий в той же локации.
Детали проекта
Площадь
32,1 м²
Срок
1,5 месяца
Локация
г. Москва, ЖК Первый Дубровский
Год
2025
Стиль
Современный / Эко-минимализмГалерея
Проект был выполнен для компании REBL